WORKS 168
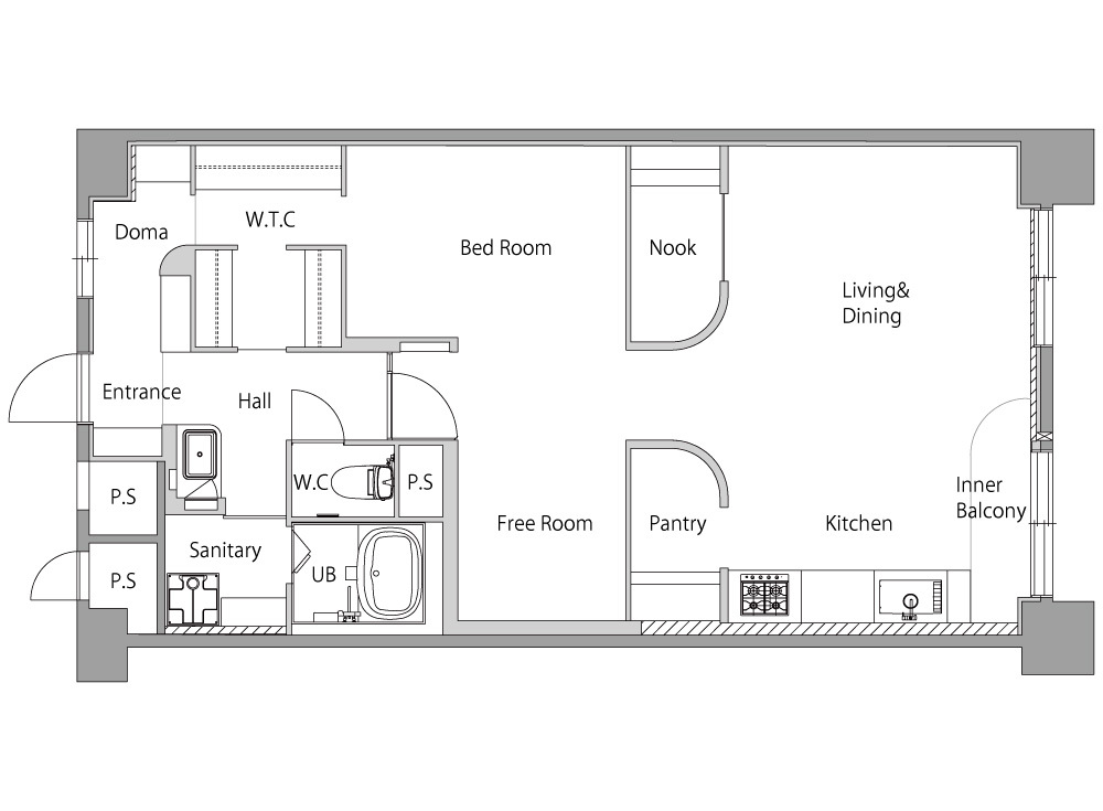
アールの向こう側「モノよりコト、コトよりヒト」M様が大切にされる想いがベースとなったこちらの住まい。 人を基軸にした空間づくりは、各所のデザインや使い勝手に反映されています。 住まいの象徴であるLDKの「アール壁」。 ヌックやパントリーといった小さな場所を、アールでやわらかく囲うことで、ワンルームに近いひとつづきの空間を印象づける場所に仕上がりました。 また、壁の高さを低くしたオープンスペースにすることで、閉塞感の緩和や換気のしやすさにつながります。 壁や天井はお気に入りのホテルを参考にしたベージュで塗装し、随所にオーク材をアクセントに使うことで、コンクリートやモルタル、マットなグレーといった冷たさのある素材と組み合わせても、空間全体はあたたかみのある落ち着いた雰囲気に。 壁付けのキッチンはオリジナルで製作し、広めのシンクや引き出し内部の内引き出しなど、使いやすさの工夫が充実しています。 さらに、キッチンの壁から一筆書きのようにつながるタイルはインナーテラスへと伸び、植物を手入れするための場所に。床を1段下げているので、水や土を気兼ねなく使えます。 こうして一つ一つ丁寧に選ばれたものが日々の暮らしに自然と馴染み、人の気配や暮らしぶりが住まいに生き生きとした空気感をもたらします。
PHOTO GALLERY
DESIGN PLAN
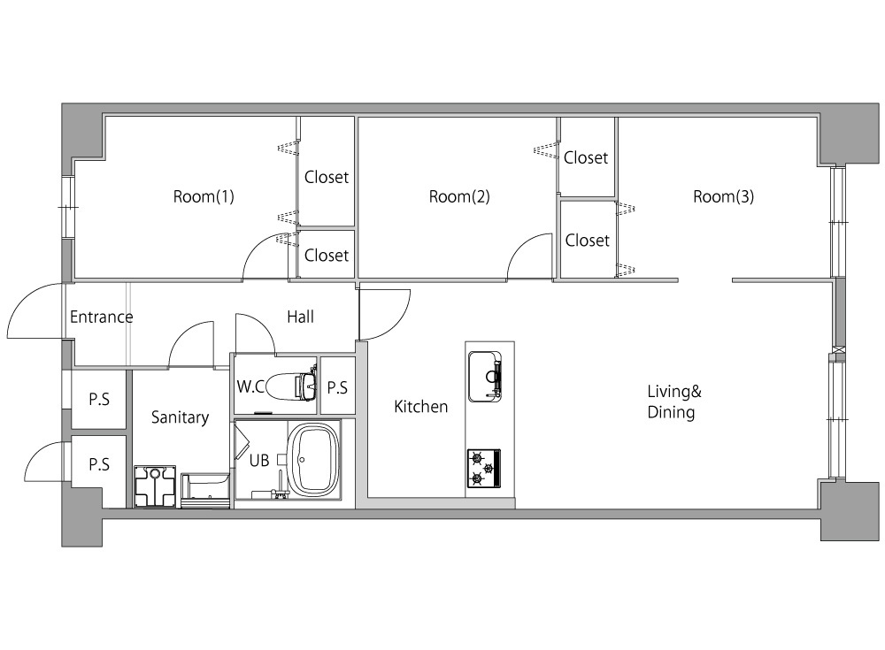
プラン概要築古マンションではよくあることですが、もともとLDKのベランダ側にしかエアコンをつけられない物件でした。費用をかけて複数台のエアコンを設置するのではなく、1台で過ごせるよう空間をまとめるエコな選択をされました。 そのため、LDKを区切るアール壁は高さ180cmに抑えられており、奥まで視界が抜けるワンルームのような開放感があります。 さらに、LDK奥の2部屋はカーテンで仕切ることができ、将来的には建具やパーテーションを追加して個室化も可能。建具や壁を極力減らしたことで通路幅にゆとりが生まれ、家全体がゆったりと感じられます。 また、ドア枠を設けずに壁と同色で塗装した建具は空間にシームレスに溶け込み、統一感を演出。 一見、クールな印象を与える空間ですが、ヌックの床や玄関のベンチに取り入れたヘリンボーン柄が可愛らしさを加えます。 大きなガラスを入れたリビングドアは玄関からの見通しを良くし、あちこちに配したニッチ収納はM様のお気に入りのポイントに。機能とデザインの両面で日々の暮らしを心地よくするアイデアが散りばめられています。


- 工期
- 3ヶ月
- 改装費用
- 約1370万円
- 施工面積
- 75.60㎡
- 家族構成
- 夫婦
- 築年数
- 45年
- 所在地
- 大阪市北区