WORKS 169
まるく つつまれてカーペットの上でゴロゴロしていても、キッチンで料理をしていても、ベッドで静かに休んでいても。 それぞれが思い思いに過ごしながら、同じ空間を共有している安心感を大切にした住まいです。 ひと続きのワンルームのような開放感を持ちながら、少し閉じたようなプライベート感も大切にした間取りが特徴。天井や床、カウンターに取り入れたアールが、壁の代わりとなってやわらかに空間を整えます。 各スペースは用途を限定せず、テーブルセットはベッドスペースのそばに置いたり、来客時にはキッチンへ移動して会話を楽しむ場にしたりと自在にアレンジ可能。 日常にもゲストシーンにも柔軟に対応できるレイアウトです。 インテリアは、ブラックチェリーのフローリングとグレージュのカーペットを基調に、廊下にはラワンのオリジナルドアを。 落ち着いた色調の中に、お手持ちの家具や小物が自然と馴染み、H様の雰囲気を映し出すような色合いに。 同じ空間にいる安心感と、自分のペースも大切にする、そのバランスが暮らしの豊かさにつながります。
PHOTO GALLERY
DESIGN PLAN
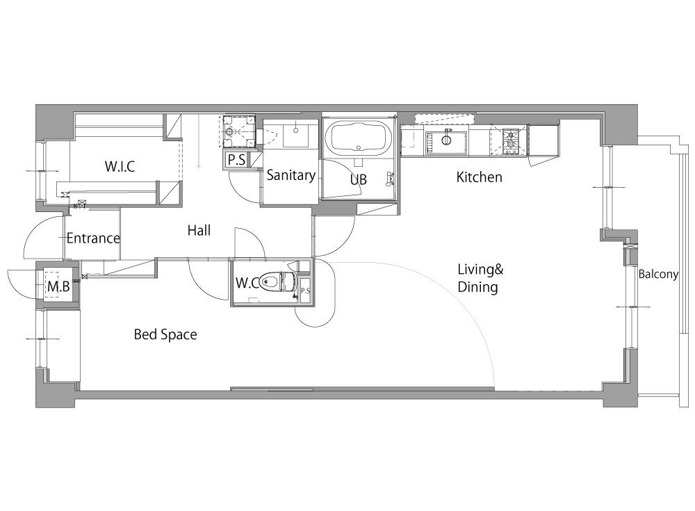
プラン概要リビングとベッドスペースをつなぐ、トンネルのようなアール。実は大きな梁を隠す役割も兼ねており、デザインと機能性を両立。こうした工夫は家の各所に見られます。 すっきりとした印象のキッチンではコンロをコンパクトにし、その分調理スペースにゆとりを確保。シンクの左横に設けた食洗機は、使用済みの食器を入れやすいレイアウトです。 キッチン壁にあるニッチ収納の中にもタイルを貼り、小口が見えない工夫を施すことで、細部まで上質さを感じられるデザインに。収納量と美しさ、両方を兼ね備えています。 また、ドラム式洗濯機をホールの一角に配置。洗濯機で乾燥させた衣類は、すぐにウォークインクローゼットにしまえる効率的な動線を実現。毎日の家事がスムーズに進むように設計しています。 照明計画は明るすぎず落ち着いた雰囲気に。天井の照明は数を抑え、カーペットエリアにはブラケットライトを。LDKには間接照明も取り入れることで、柔らかく空間を照らします。


- 工期
- 3ヶ月
- 改装費用
- 約1200万円
- 施工面積
- 65.46㎡
- 家族構成
- 夫婦
- 築年数
- 32年
- 所在地
- 兵庫県