CONTACT

WORKS 170

透明な境界

お気に入りのモノが暮らしの一部となる、Y様のお住まい。 山登りが趣味の奥様と、カメラを楽しむご主人。おふたりでキャンプにも出かけるというライフスタイルが、そのままインテリアにも表れています。 キッチンカウンターの棚にはご主人のカメラを、ワークスペースの壁には奥様の登山ギアを引っ掛けて収納。 趣味の道具が空間を彩りながら、見せる収納として整理のしやすさも実現しました。 日当たりの良い角部屋の窓際ではグリーンがすくすくと育ち、出窓のカウンターには旅の思い出を並べて、眺めを楽しめる心地よい場所に。 LDKの一角にあるヌックはコンパクトでおこもり感を演出しながら、内部に本棚を、ベンチ下も収納として活用できる実用性も確保しました。 また、リビングダイニングを横断する大きな梁には、梁下に沿って木製の大きなアールを設け、圧迫感を重厚なデザインに変える工夫を加えています。 住まいの象徴となる大きなアールが空間をやわらかくゾーニングし、ヌックの開口部に施した小さなアールとリンクすることで、全体にやさしい統一感を生み出しました。 透明な境界で区切りつつも光が巡り、アール越しに見える景色が何気ない日常も少し特別に感じさせてくれます。

PHOTO GALLERY

DESIGN PLAN

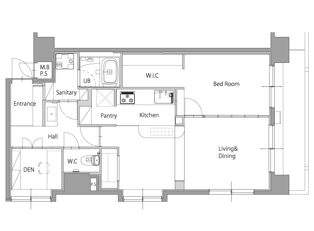
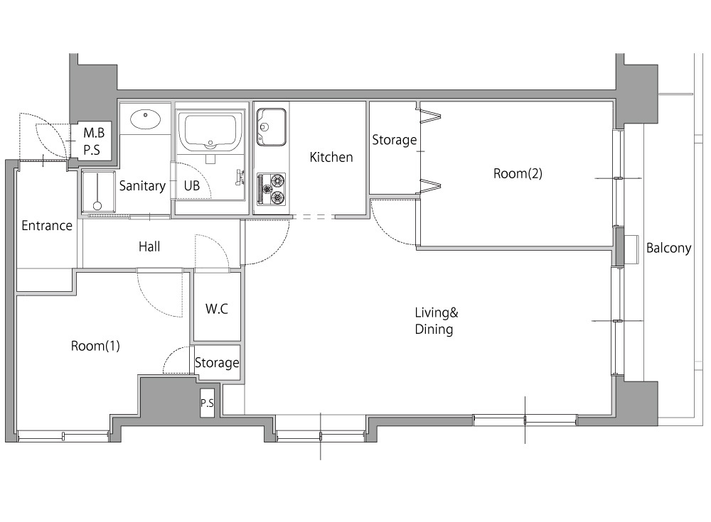
プラン概要

ご夫婦ともにほぼテレワークという職業柄、書斎と寝室のワークスペースをそれぞれ設けました。 料理や食事をしていてもお互いの仕事の邪魔にならない、暮らしやすい間取りです。 寝室とリビングの間には大きな室内窓を設け、光や視線が抜けることで空間に広がりを演出。 パントリーの天井やリビングドア前の下がり天井のラインを揃えることで、空間の情報を整理し、リビングに入った瞬間の心地よい広がりを大切にしています。 寝室とキッチンの間や、脱衣所と玄関の間の壁には、実家で使われていた古建具のガラスを明かり取り窓として再利用。昔ながらの柄をしたガラスがやわらかな光を通し、空間に温かみを加えます。 暗さが気になった玄関では、正面に位置する書斎に大きなガラス入りの両開きドアを採用することで、光が届くレイアウトに。 ドアは左右に開いたときに、2枚の扉が前後ぴったりと重なるデザインがポイントです。 また、キッチンではシステムキッチンをカスタムし、扉面材をシナ材に変更。さらに、しっくいのDIYにも挑戦され、手仕事のぬくもりも感じられます。 こうして暮らしのあたたかさと機能性がバランスよくまとまった住まいに仕上がりました。

before
after
工期
3ヶ月
改装費用
約1500万円
施工面積
61.84㎡
家族構成
夫婦
築年数
31年
所在地
東京都大田区
WORKS 170
この事例に登録されているタグ
LIVING・DINING WORK SPACE WINDOW FURNITURE SANITARY

INSTAGRAM

フォロー
BACK TO TOP