CONTACT

WORKS 172

静謐な間 – tatema

規則的に刻まれる、心地よく整ったデザインに「どこか実家のお寺を感じて落ち着く」と、tatemaを選ばれたT様。「間」をテーマにした空間づくりや静けさを大切にしたスタイルに、ご自身との共通点を感じ取られたのかもしれません。 リビングを象徴するのはT様がリノベーションで叶えたかった、本を飾るように収納するための可動棚。 迷いながら選ばれた配置は、最終的にセンスが光るディスプレイとなり、空間に個性を加えています。 また、水まわりの仕様や内装素材を提案の中から選んでいくtatemaの進め方は、打ち合わせ時間が限られるT様にとっても負担が少なく進められるプロセスでした。 独立されたお子さまが時折泊まりに来られることからフリースペースを備えたプランとし、リブパネルを用いたウォークインクローゼットの壁は、収納でありながらさりげなくデザイン性を感じます。 暮らしに必要な機能を無理なく落とし込んだ、すっきりとした構成に。 tatemaというベースがありながら、置くものや暮らし方によって自然とT様らしさが感じられる住まいに仕上がりました。

PHOTO GALLERY

DESIGN PLAN

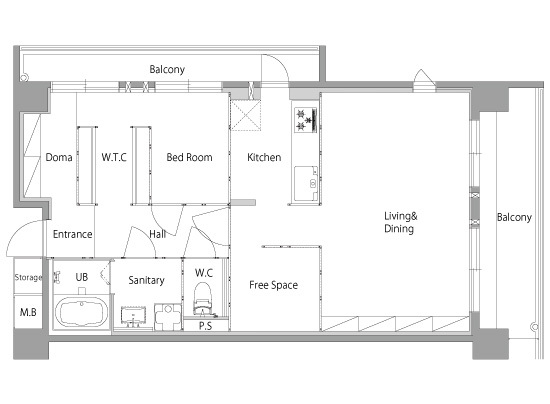
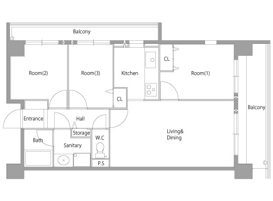
プラン概要

リブパネルが連続する室内廊下は、tatemaの特徴である規則的なリズムが刻まれ、主張しすぎない静かな佇まいに。訪れる人が自然と空間の特徴に浸れる、印象的なアプローチです。 リビングダイニング天井の躯体現しやtatemaのリブパネルを除き、壁と天井はすべて塗装仕上げに。リブの陰影が引き立つよう、他の要素はシンプルに整えました。 巾木や窓枠も設けず、ノイズを抑えた納まりとすることで、空間全体をすっきりとまとめています。 床材は玄関土間を除き、マットなグレーのフロアタイルを全室に採用。 水まわりも含め素材を統一することで、住まい全体の完成度を高めています。 タフな塗装を施したリブパネルは水まわりにも使用可能。 洗面まわりやキッチン、トイレにも木を取り入れることで、機能性と素材感を両立した新鮮な印象に仕上げました。 さらに、各所のドアにはハンドルではなくつまみを採用。ドアを閉めるとその存在感は無くなり、tatemaの規則的な空間を引き立たせます。 スイッチやコンセントも目立たない位置に配置し、リブの幅に合わせた電気プレートを使用するなど、必需品の在り方にも配慮しました。 こうしたさりげない工夫の積み重ねによって、暮らしそのものが自然に際立つ空間に整えています。

before
after
工期
4ヶ月半
改装費用
約1200万円
施工面積
61.66㎡
家族構成
築年数
30年
所在地
神戸市東灘区
WORKS 172
この事例に登録されているタグ
LIVING・DINING KITCHEN SANITARY WOOD DOOR

INSTAGRAM

フォロー
BACK TO TOP