CONTACT

WORKS 174

ひとつづきにくらす

帰宅してすぐ、LDKが開けた間取りにしたい。というN様のご希望から住まいづくりがスタートしました。 住まいの中心に据えたのは、モルタル仕上げのダイニングカウンターと一体となったキッチン。 Ⅱ型レイアウトを採用し、設備配管の位置を踏まえ、シンク側とコンロ側を少しずらして配置。玄関からもリビングからもアクセスしやすい動線を実現しました。 オープンなキッチンだからこそ、設備機器も存在感のあるものをセレクト。空間のアクセントとしての役割も担っています。空間の主役となるこの場所を囲むように、日々の食事やゲストとの時間を過ごせます。 また、ベッドスペースはLDKから直接視線が届きにくい位置にレイアウト。ワンルームのような開放感を保ちながらも、空間にメリハリをもたらしています。 ゆるやかにつながる室内には、住まいの各所に吊るされたグリーンが点在し、シックな色合いでまとめたインテリアの中に彩りをプラス。 そんな空間の中で、自然光が差し込む明るいキッチンでコーヒーを淹れるひとときが、新しく始まった暮らしの一場面となりました。

PHOTO GALLERY

DESIGN PLAN

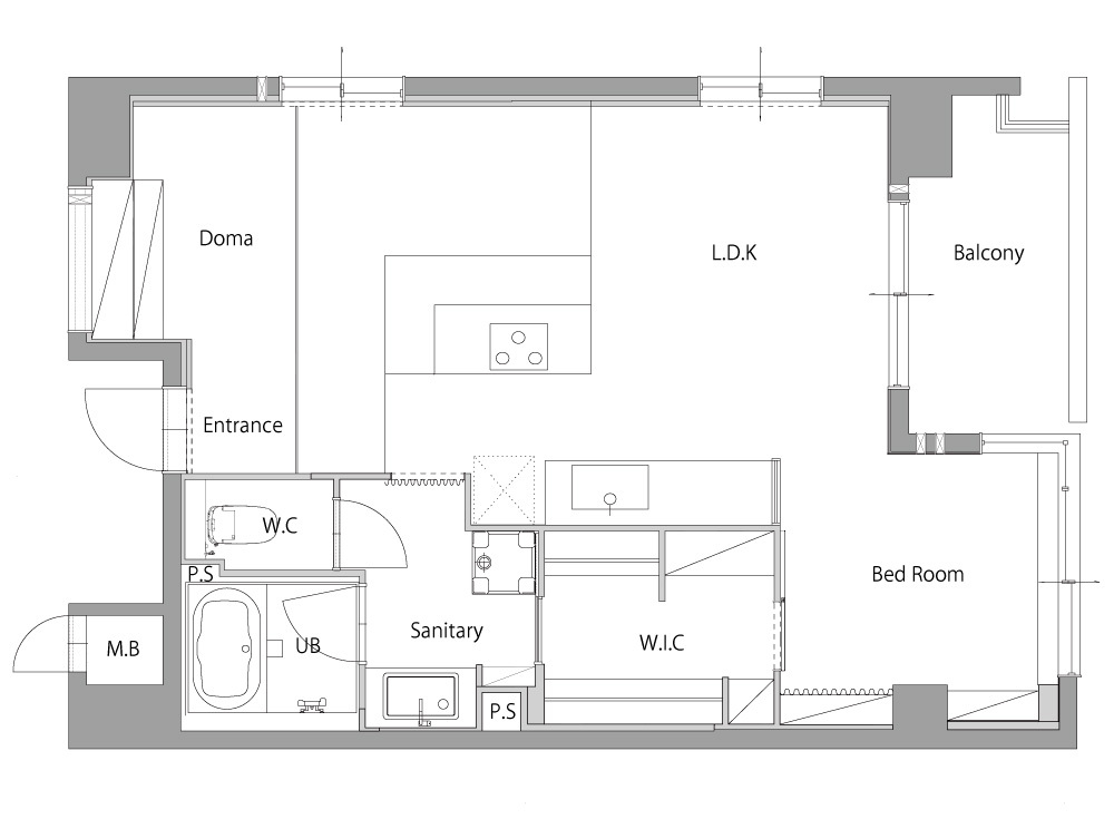
プラン概要

住まい全体をぐるりと回遊できる、ワンルームの間取り。 ベッドスペースからウォークインクローゼット、洗面室から浴室までの開口部を一直線上に配置することで、日常の動線をスムーズにすると同時に、空気が通り抜けやすく換気にも配慮しています。 こうした空間構成により、室内を細かく仕切ることなく、エアコン一台で室内環境をまかなえるのもポイント。 さらに、エアコンを玄関側に設置することで、リビング側の壁面をすっきりと見せています。 ダイニングはガスや排水の経路を確保するため、床を一段上げた設計に。 キッチンとダイニングカウンターそれぞれの使いやすい高さに調整しつつ、視覚的にはフラットに見える納まりを実現しました。 インテリアは、グレー塗装の壁とブラックチェリーのフローリングを組み合わせ、長く愛着を持てる落ち着いた雰囲気に。 回遊性を活かした室内廊下のない構成とすることで、動線に無駄がなく、住まい全体のスペースを最大限に活用しています。

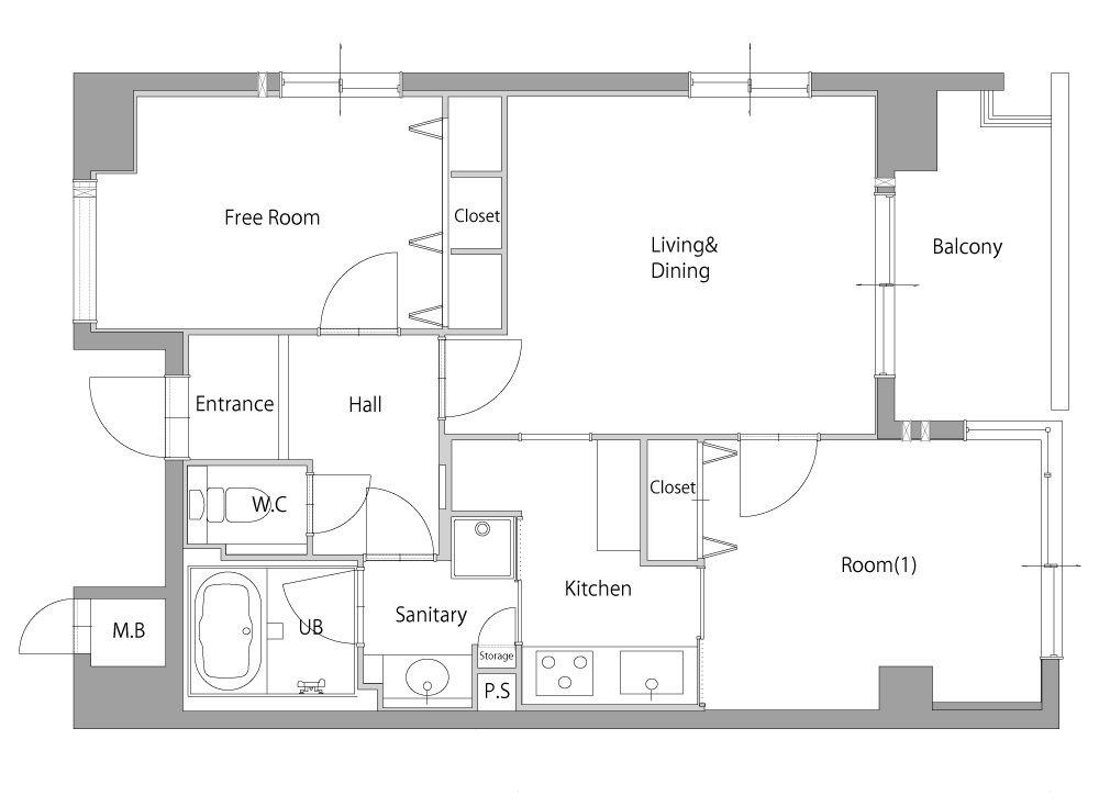
before
after
工期
3ヶ月
改装費用
約1200万円
施工面積
56.31㎡
家族構成
おひとり
築年数
22年
所在地
大阪市中央区
WORKS 174
この事例に登録されているタグ
LIVING・DINING ENTRANCE・HALL KITCHEN MORTAR OPEN PIPE

INSTAGRAM

フォロー
BACK TO TOP