ライフスタイルに合わせて考える、2人暮らしの間取りアイデア
「2人暮らし」といっても、そのかたちは実にさまざま。
大人2人でゆったりと暮らす住まいもあれば、将来的に家族が増えることを想定した住まい。
あるいは子どもが独立したあと、再び2人暮らしに戻る可能性を見据えた住まいもあります。
今の快適さだけでなく、これから先の暮らしの変化まで考える必要がある。
それが、2人暮らしでの住まいづくりの難しさであり、同時に面白さでもあります。
また、仕事のスタイルや休日の過ごし方、家の中で大切にしたい時間は人それぞれ。
在宅ワークが中心の人もいれば、趣味の時間を充実させたい人、家事のしやすさを最優先に考えたい人もいるでしょう。
「2人暮らし」という同じ言葉で括られていても、暮らし方が違えば、心地よい間取りのかたちも当然変わってきます。
だからこそ、間取りを考えるときに大切なのは、一般的な2人暮らしの正解を探すことではなく、自分たちのライフスタイルに目を向けること。
今回は、そんな多様な2人暮らしの考え方と間取りのアイデアを、ライフスタイル別にご紹介していきます。
INDEX
2人暮らしの広さに迷ったら?将来から逆算する住まい選び

2人暮らしの間取りを考えるとき、まず気になるのが「どれくらいの広さが必要なのか」という点ではないでしょうか。
目安としては、大人2人で暮らす場合、50〜70㎡程度がひとつの基準になります。
この広さであれば、リビングや寝室にゆとりを持たせつつ、在宅ワーク用のスペースや収納もしっかり確保しやすく、小さな子どもが1人増えるくらいまでなら対応できるケースも多く見られます。
一方で、子ども2人を想定した4人暮らしの場合、80㎡以上、場合によっては90㎡以上を希望される方も少なくありません。
ただし注意したいのが、その広さを必要とする期間が、実はそれほど長くないという点。子どもが成長し、それぞれに個室が必要になる期間は、せいぜい10年ほど。
その後、子どもが独立すれば、再び2人暮らしに戻る可能性が高く、広すぎる住まいを持て余してしまうケースも多くあります。実際に、80〜90㎡以上の住まいでは、将来的に住み替えを検討する方も少なくありません。
しかし近年は、物件価格の高騰が続いており、「住み替えたいと思っても、条件に合う物件がなかなか見つからない」という声もよく聞かれます。
だからこそ、最初に住む家を探す段階で、将来の暮らし方まで視野に入れて考えることが大切。
今の家に住み続けるのか、将来住み替える前提で考えるのか。それとも、2人暮らしをベースにした住まいで、暮らし方を柔軟に変えていくのか。
広さの「数字」だけで判断せず、これからのライフスタイルと時間軸を踏まえて、住まいの選択を考えていきましょう。
事例1・近すぎず、離れすぎない。大人の2人暮らしワンルーム
大人の2人暮らしでは、「ちょうど良い距離感」が住まいの心地よさを大きく左右します。
ずっと一緒に過ごせる安心感はありつつも、近すぎると息苦しさを感じることもある。
一方で、離れすぎてしまうと、相手が何をしているのか分からず、どこか物足りなさを感じてしまう。
こちらのお住まいでは、そんな大人ならではの距離感を大切にしながら、間取りを計画しました。

採用したのは、「大人のワンルーム」ともいえる間取り。住まいの中心となる大きなワンルーム空間の一角に、ベッドスペースを配置しています。
一般的なワンルームとは異なり、生活のゾーンの間に距離感が保たれているため、空間全体にメリハリが生まれ、落ち着いた印象を受けます。

リビング側ではソファでゆったりとくつろぎ、パートナーはカーペットを敷いたエリアでごろごろと過ごす。
気配は感じながらも、同じことをしなくていい。それぞれが自分の時間を大切にできるのも、大きなワンルーム空間ならではの魅力です。

また、人数が2人だからこそ、暮らしが軽やかになる点も見逃せません。
リビングとベッドスペースを1台のエアコンで冷暖房管理できるため、設備がシンプルになり、日々の暮らしやランニングコストの面でもメリットがあります。
ワンルームと聞くと、一人暮らし向けの間取りをイメージされがちですが、近年のリノベーションでは、物件の広さを活かした開放的なワンルームが、大人の2人暮らしにも選ばれるようになっています。

一人暮らしから二人暮らしになった場合でも無理なく住み続けられる点も、この間取りの大きな魅力。先の暮らしまで見据えた、柔軟性の高い住まいのかたちです。
・ご紹介の事例はこちら▷▷▷まるく つつまれて[Click Here]
事例2・在宅ワークでも快適。仕事と暮らしを切り替える2人暮らしの間取り
ご夫婦ともに在宅ワークが多いお客様は、「家の中でどう働くか」が間取り計画の大きなテーマでした。

仕事スペースは、玄関側に設けた書斎と、寝室内のデスクスペースの2か所。



家の中でも離れた位置に配置することで、オンラインミーティングの声が重なったり、生活音が気になったりする心配を軽減しました。
お互いの仕事を邪魔せず、それぞれが自分のペースで働ける環境が整っています。
一方で、ずっと別々の空間にこもるのではなく、自然と集まれる場所も大切にしました。
お昼になると、家の中心に配置したキッチンエリアへ集合。キッチンとダイニングが中間地点のような役割を果たし、仕事の合間に無理なく切り替えができる空間になっています。

ミーティングを邪魔することなく、短い時間でも一緒に食事を楽しめるのが、この配置の魅力。
専有面積は61㎡ですが、間取りの特徴を活かすことで、2か所のワークスペースを無理なく確保し、仕事と暮らしの両立を実現しています。
広さを増やすのではなく、空間の使い方を工夫することで、日々の動線や気持ちの切り替えがスムーズになる好例。
ミーティング中にパートナーが映り込んでしまう、といった在宅ワークならではの小さな困りごとも回避できる、今の暮らし方にフィットした2人暮らしの住まいです。
・ご紹介の事例はこちら▷▷▷透明な境界[Click Here]
事例3・模様替えを楽しむ。暮らしに余白を残した2人暮らしの間取り
模様替えをしたり、アートのディスプレイを入れ替えたり。
住まいの中に手を加えることで気分転換をするのがお好きなご夫婦にとって、「住んだあとも自由に変えられること」は、間取りを考えるうえで欠かせないテーマでした。
リノベーションというと、間取りや家具配置が固定されてしまい、住み始めてからの自由度が少ないのではないか?
そんな不安を解消するため、こちらのお住まいでは「作り込みすぎない」間取りを意識しています。

人数の少ない暮らしは、思い立ったときに大胆な模様替えができるのも大きなメリット。
同じ住まいでも、家具の配置を変えるだけで、まったく違う表情になる。その変化を楽しめる余白を、空間の中にあらかじめ残しました。
現在ベッドを置いているスペースは、将来的に書斎へと用途を変えることも可能▼▼▼

ベッドは、玄関側に広く確保した収納スペースへ移動させることも可能▼▼▼

暮らし方に合わせて部屋の役割を柔軟に入れ替えられるようになっています。
キッチンの作業台も実は可動式。今はキッチンと平行に配置した2列型のレイアウトですが、位置を変えれば、キッチン横に寄せた大きなI型のような使い方もできます▼▼▼

料理のスタイルや、そのときの気分に合わせて、空間の使い方を変えられるのもこの住まいの特徴。
こうした自由度を確保するため、リノベーションでは作り付けの棚などはあえて最小限にとどめました。
模様替えがしやすいだけでなく、将来ライフスタイルが変わったときにも対応しやすい。そんな柔軟さを大切にしています。

将来、どんな暮らしになるのかは、正直なところ本人にも分からないもの。だからこそ、最初から想定しすぎず、その都度暮らしに合わせて変えていける余白を住まいに残す。
そんな考え方をかたちにした、変化を楽しむ2人暮らしの住まいです。
・ご紹介の事例はこちら▷▷▷フレキシブルポップ[Click Here]
事例4・今は広く、将来は分けられる。変化に備える2人暮らしの間取り
ゆったりとした広さを確保した大きな寝室。一見すると贅沢な2人暮らしの間取りですが、実はこの空間には、将来的に家族が増えた場合を見据えた工夫が施されています。

ポイントは、寝室の出入り口に設けた引き戸▼▼▼

現在は大きな一室として使いながら、将来必要になったタイミングで中央に壁を立て、2部屋に分けられる設計になっています。
引き戸の位置や納まりをあらかじめ計画しているため、間取りを変更してもそのまま使い続けることができるのが特徴です。
「今は広く使いたい。でも、将来の変化にも備えておきたい」
そんな希望をどちらも叶えられる間取りは、暮らしに余裕と安心感をもたらしてくれます。どちらの使い方も選べる、という選択肢があること自体が、心のゆとりにつながるのかもしれません。
そしてこの間取りは、将来的に子ども部屋が必要なくなった際には、元の間取りにも戻せるのもポイント。二段階の変化にも備えています。
また、この住まいでは、ご夫婦それぞれのお気に入りの居場所をつくっている点も印象的。
奥様はロフトの上で本を読んだり

ご主人はキッチンに立って料理をする。

別々のことをしながらも、同じLDKの中で気配を感じられる距離感が保たれています。
それぞれの時間を尊重しながら暮らすこと。そして、今の暮らしを十分に楽しみながら、将来の変化にもきちんと備えること。
そんな大人の2人暮らしにちょうど良いバランスを体現した間取りです。
・ご紹介の事例はこちら▷▷▷それぞれの基地[Click Here]
事例5・2人暮らしでも80㎡を選んだ理由
将来的に家族が増える可能性を見据え、個室を2つに分けられるよう計画されたこちらのお住まい。専有面積は約80㎡と、2人暮らしとしてはゆとりのある広さを確保しています。

この広さが必要だった理由は、将来の家族構成だけではありません。ご夫婦は、家族や友人が家に遊びに来るライフスタイル。
人が集まる時間を大切にしたいという思いから、「みんなでくつろげるリビング」を住まいづくりのテーマに据えました。
リビングには、ダイニングテーブルやソファだけでなく、窓辺に造作ベンチを設けています▼▼▼

ゲストが多い日でも、座る場所がしっかりと用意でき、誰もが思い思いにくつろげる空間に。
個室も、このライフスタイルにおいては十分に意味のある空間です。客室として活用することもでき、この家の広さはご夫婦にとって「持て余す広さ」ではなく、「必要な広さ」といえるでしょう。
また、この住まいのもう一つの魅力が、大きなルーフバルコニーの存在です。リビングとつながる開放的な屋外空間は、日常の暮らしを豊かにするだけでなく、物件としての希少性も高めています。
仮に将来住み替えを検討することになったとしても、バルコニーが広い特徴がはっきりしているといった要素は、資産性の面でも強みになります。

住まいの広さや間取りに正解はありません。大切なのは、他の人の事例を参考にしながらも、自分たちの暮らしの軸を見失わないこと。
こちらのお住まいは、ライフスタイルに合わせて広さを選び、今の暮らしも将来の可能性も大切にした、2人暮らしのひとつの答えです。
・ご紹介の事例はこちら▷▷▷Folks Nest[Click Here]
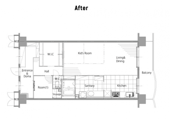
事例6・将来2人暮らしに戻る前提で考える、家族4人の住まい
こちらのお住まいは、約72㎡の専有面積にご夫婦と子ども2人、計4人で暮らしています。限られた広さの中で、今の暮らしと将来の暮らし、その両方を見据えた間取り計画が特徴。

注目したいのは、LDKの中に設けられた子ども用のスペース。リビングの一角には、カーテンで仕切ることができるベッドスペースがあり、現在は子ども2人の為の場所として使われています。

一見すると少し大胆な配置にも感じられますが、ここには明確な理由があります。
子ども部屋が本当に必要な期間は、実はそれほど長くありません。成長とともに個室が必要になる時期はあるものの、やがて子どもは独立し、家を巣立っていく可能性が高い。
そうした将来を見据え、あえて壁でしっかり区切った子ども部屋はつくらず、カーテンで仕切る部屋という考え方を取り入れました。

壁を立てないことで、空間は将来も柔軟に使うことができます。子どもが独立したあとは、このスペースをLDKの一部として取り込み、ご夫婦が趣味を楽しむ場所や、くつろぎの空間として使う予定。
間取りを大きく変えることなく、暮らし方だけを自然に切り替えられる点が、この住まいの大きな魅力といえます。
今は4人暮らしでも、いずれ訪れる夫婦2人での暮らし。その先までを段階的に想定しながら、空間の使い方を計画している間取りです。
「今、足りているか」だけでなく、「将来、持て余さないか」という視点を持つこと。2人暮らしへと戻る未来を見据えた、参考になる住まいのひとつです。
・ご紹介の事例はこちら▷▷▷N.O.[Click Here]
2人暮らしに、決まった間取りはない

2人暮らしの間取りを考えるとき、多くの方が「何㎡あれば安心か」「部屋はいくつ必要か」といった正解を探そうとします。
特にこれまで賃貸物件暮らしをしていると、そうした家の探し方しかできなかったので無理はありません。
しかし、ここまで見てきたように、2人暮らしのかたちは本当にさまざま。ライフスタイルや価値観、将来の考え方によって、住まいの答えは大きく変わります。
大切なのは、今の暮らしだけを見るのではなく、これから先に起こり得る変化にも目を向けること。
家族が増える可能性、在宅ワークの有無、子どもが独立した後の暮らし方。すべてを完璧に想定することはできませんが、「変わるかもしれない」という前提を持つだけでも、間取りの考え方は柔軟になります。
今回ご紹介した事例には、共通する考え方があります。それは、間取りを固定しすぎないこと、そして自分たちの暮らしの軸を大切にすること。
距離感を大切にする住まい、仕事と暮らしを切り替えられる住まい、模様替えを楽しめる住まい、人が集まる住まい。どれも「広さ」や「部屋数」だけでは語れない、その人らしさが反映されています。
他の人の事例は、あくまでヒントにすぎません。真似をするのではなく、「自分たちは何を大切にしたいのか」「どんな時間を過ごしたいのか」を言葉にしていくこと。その積み重ねが、後悔のない住まいづくりにつながります。
2人暮らしは、暮らしの変化が大きい時期でもあります。だからこそ、今を楽しみながら、未来にも余白を残す。
ご紹介したことを自分たちらしい間取りを考えるきっかけにぜひ役立ててください。
ハコリノベインスタグラムでも「2人暮らしの間取りアイデア」をご紹介!こちらも参考にしてくださいね

チェックはこちらから▶︎▶︎▶︎ハコリノベInstagram[Click Here]
_________________________________________
▼▼施工事例▼▼
ハコリノベの事例一覧はこちら >> 施工事例
▼▼EVENT▼▼
見学会情報や相談会はこちら
>> 関西エリアイベント情報
>> 関東エリアイベント情報
_________________________________________
(ご来店希望日時をコメントにご記入願います!)
